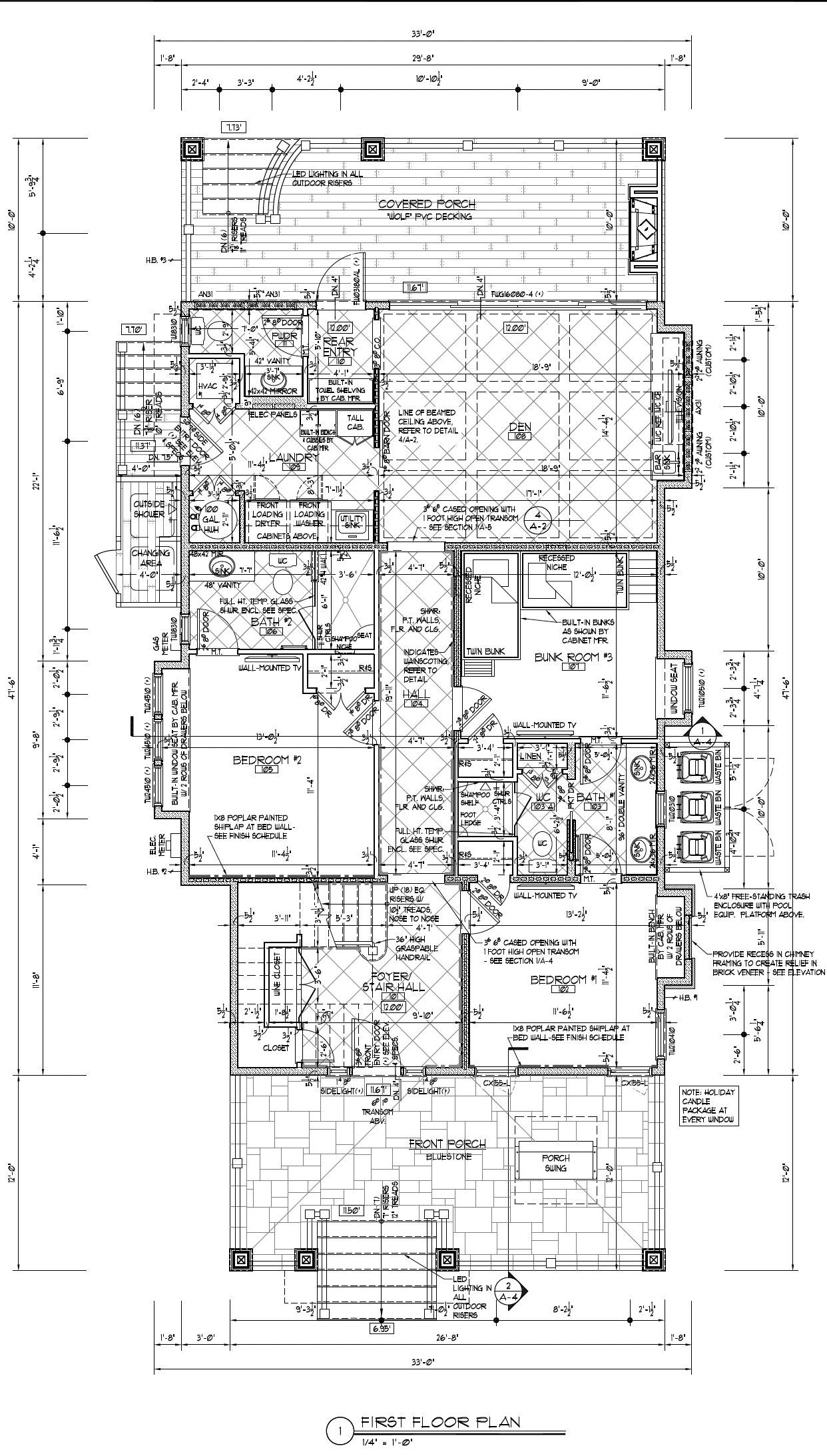
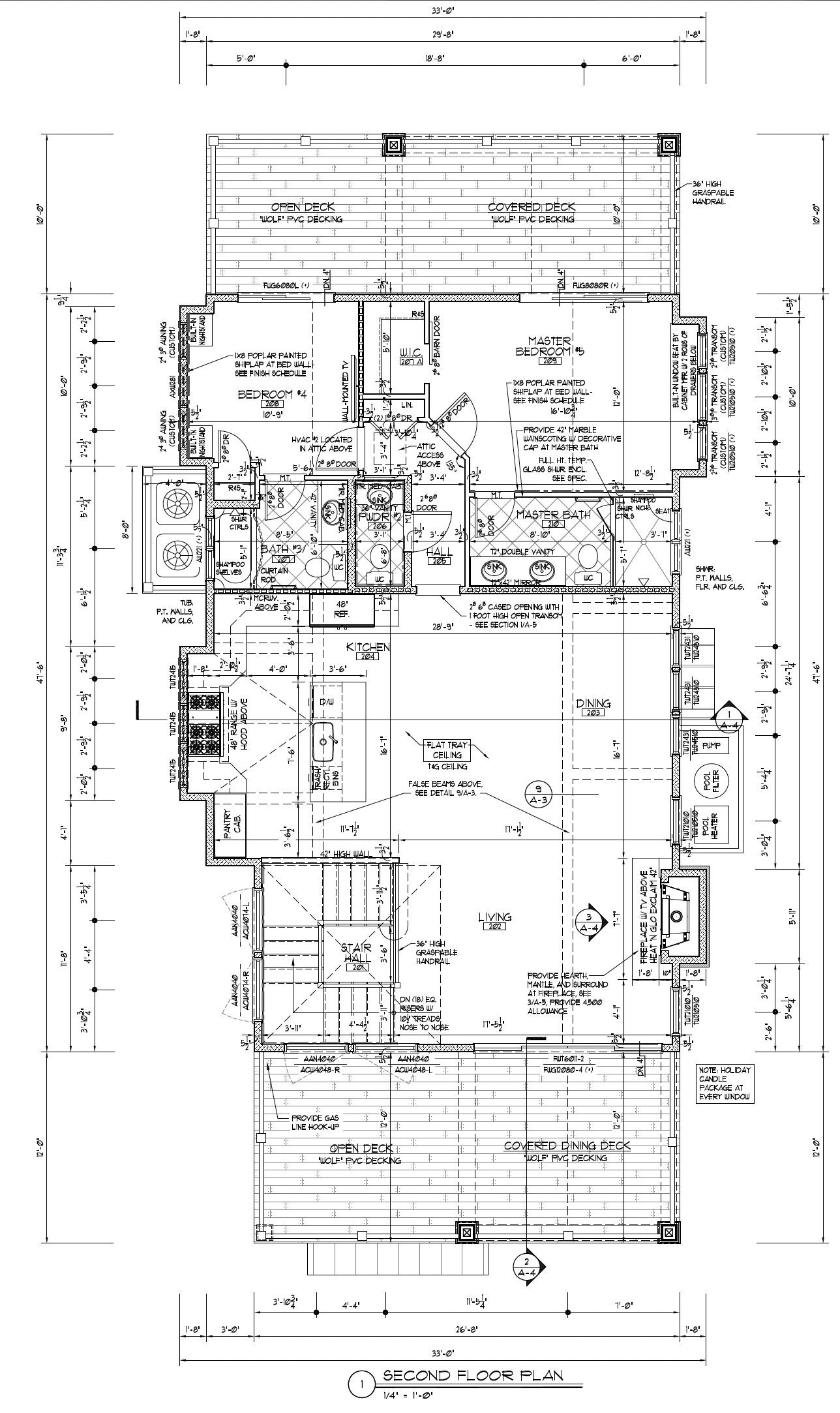
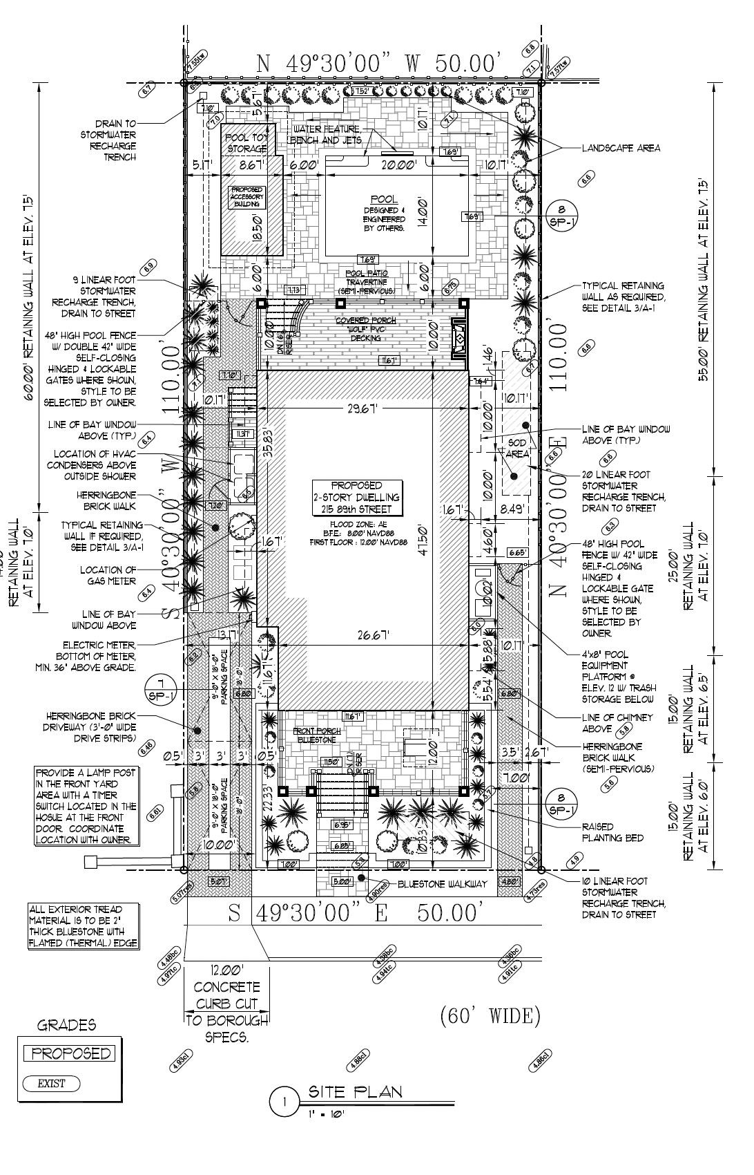
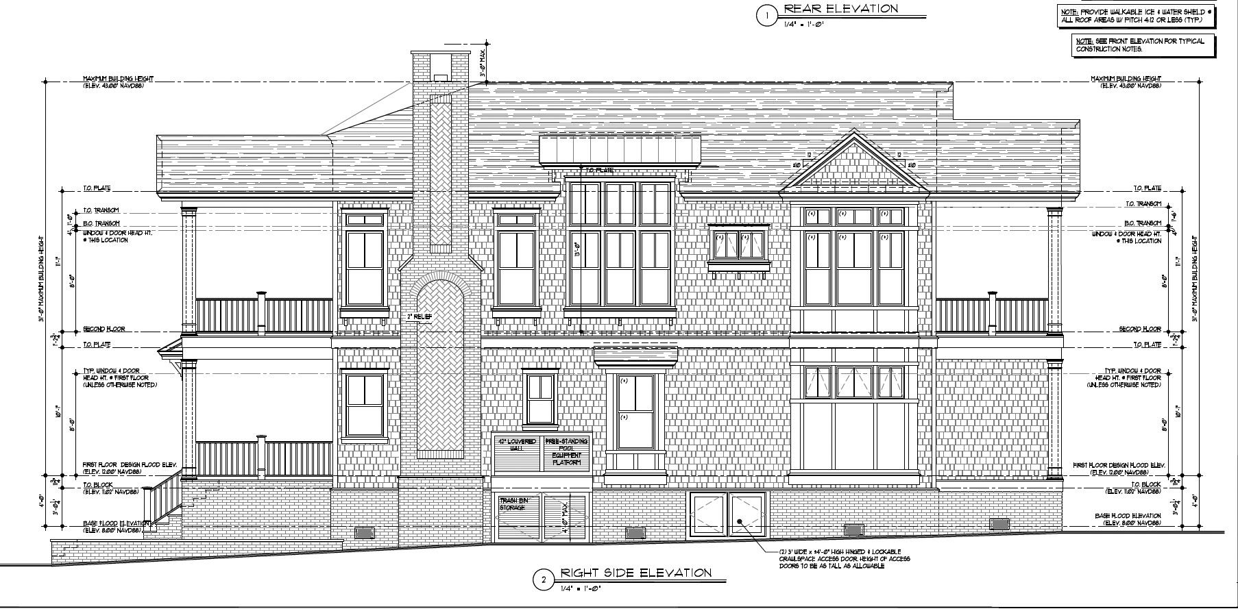
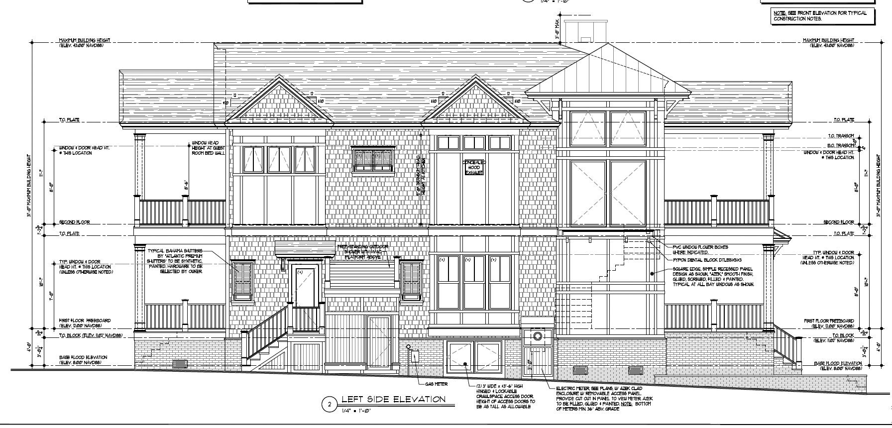
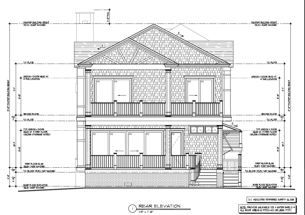
This proposed new construction residence at 154 98th Street in Stone Harbor, NJ, presents a rare opportunity to own a meticulously designed coastal home in one of the area s most desirable neighborhoods. Created by OSK Design and built by renowned local builder Ron Frame of Seashore Builders, this custom home will embody a refined vision of modern shore living, seamlessly integrating timeless coastal architecture with a highly functional and elegant layout. Spanning approximately 2,750 square feet across two thoughtfully planned levels, this residence features five bedrooms, four full bathrooms, and two half baths, providing ample space for both family living and entertaining. The second floor is dedicated to primary living and entertaining spaces, maximizing natural light, elevation, and coastal views. The expansive open-concept living room, dining area, and kitchen are defined by clean architectural lines and high-end finishes, including custom cabinetry and quartz countertops with a stylish tile backsplash. The kitchen serves as the heart of the home, featuring a substantial center island perfect for everyday use and effortless entertaining. Sliding glass doors invite the ocean breeze, extending the living space to covered decks that enhance the indoor-outdoor connection ideal for relaxed coastal living. The second level also includes both a primary suite and a junior primary suite each designed for privacy and comfort, with the primary suite boasting a spa-inspired bathroom complete with a Kohler rain showerhead and frameless glass doors. The first floor functions as a private family and guest level, housing the remaining bedrooms, a cozy den, a well-appointed laundry room, a conveniently positioned powder room. A custom bunk room connects via a Jack-and-Jill bathroom to a first-floor bedroom, creating a highly functional layout for hosting guests of all ages. Sliding doors from this level open directly to the rear deck, enhancing the home s indoor-outdoor flow. Outside, the residence features stunning western red cedar shake siding and a matching shake roof, complemented by bluestone in the various exterior patio and porch areas and around the pool. The outdoor environment is anchored by a custom gunite pool and spa, outdoor fireplace, along with a cabana that includes cabinets and is prewired for TV, creating a private, resort-style setting perfect for summer entertaining. The landscaping is meticulously designed with sod, planting materials, and an irrigation system, ensuring a lush environment. Additional highlights include IPE decking, custom stainless steel cable railings, and Anderson 400 Series windows and doors. The home is equipped with a Bryant 95SA Legacy heating system and a Coastal Bryant 14 SEER air conditioner, ensuring year-round comfort. Thoughtful electrical features include LED recessed lighting, fans in all bedrooms, and prewiring for an audio system, alarm, and cameras. Located just moments from Stone Harbor s pristine beaches, vibrant downtown shopping, and acclaimed dining options, this offering represents a unique opportunity to secure brand-new construction with potential buyer input on select finishes. Renderings and plans are conceptual and subject to change. *Please note that while this property is offered as new construction for $7,495,000, it is also available "as is" for $4,395,000, which includes plans for the new construction home. This presents a unique opportunity for those looking to customize their dream home!
AMENITIES
- Self-Clean Oven
- Microwave Oven
- Refrigerator
- Washer
- Dryer
- Dishwasher
- Disposal
- Patio
- Deck
- Grill
- Fenced Yard
- Storage Building
- Cable TV
- Sidewalks
- Outside Shower
- In Ground Pool
- See Remarks
- Living Room
- Dining Room
- Kitchen
- Recreation/Family
- Dining Area
- Laundry/Utility Room
- 1st Floor Primary Bedroom
- Heating:Gas Natural
- Heating:Forced Air
- Heater:Gas- Natural
- Cathedral Ceilings
- Wood Flooring
- Smoke/Fire Alarm
- Cooling:Central Air Condition
- City
- Two Story
REQUEST INFORMATION
154 98th Street, Stone Harbor
For Sale: $7,495,000 / MLS: 260434



